|
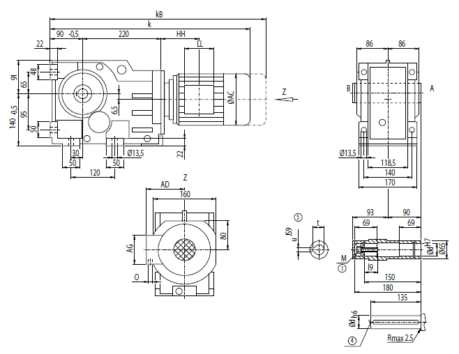
Монтажное исполнение фланец (тип-С)

| d |
to1 |
l |
l3 |
l4 |
t |
u |
i |
q |
DR |
35 |
k6 |
70 |
56 |
5 |
38.0 |
10 |
90 |
160 |
M12x28 |
40 *) |
k6 |
80 |
70 |
5 |
43.0 |
12 |
100 |
170 |
M16x36 |
50 |
k6 |
100 |
80 |
10 |
53.5 |
14 |
120 |
190 |
M16x36 |
| Мотор |
K68
k |
kB |
AC |
AD |
AG |
LL |
HH |
O |
Вес
K68 |
LA71 |
563.0 |
618.0 |
139.0 |
146 |
90 |
90 |
109.0 |
M20x1.5/M25x1.5 |
44 |
LA71Z |
582.0 |
637.0 |
139.0 |
146 |
90 |
90 |
109.0 |
M20x1.5/M25x1.5 |
44 |
LA80 |
600.0 |
663.5 |
156.5 |
155 |
90 |
90 |
108.5 |
M20x1.5/M25x1.5 |
49 |
LA80Z |
622.5 |
686.0 |
156.5 |
155 |
90 |
90 |
181.5 |
M20x1.5/M25x1.5 |
53 |
LA90S/L |
631.0 |
702.0 |
174.0 |
163 |
90 |
90 |
108.5 |
M20x1.5/M25x1.5 |
53 |
LA90ZL |
676.0 |
747.0 |
174.0 |
163 |
90 |
90 |
232.5 |
M20x1.5/M25x1.5 |
59 |
LA100L |
677.0 |
758.0 |
195.0 |
168 |
120 |
120 |
149.0 |
2xM32x1.5 |
62 |
LA100ZL |
747.0 |
828.0 |
195.0 |
168 |
120 |
120 |
281.0 |
2xM32x1.5 |
72 |
LA112M |
706.0 |
787.0 |
219.0 |
181 |
120 |
120 |
154.0 |
2xM32x1.5 |
74 |
LA112ZM |
734.0 |
815.0 |
219.0 |
181 |
120 |
120 |
258.0 |
2xM32x1.5 |
81 |
LA132S/M |
768.0 |
870.0 |
259.0 |
195 |
140 |
140 |
196.5 |
2xM32x1.5 |
84 |
LA132ZM |
814.0 |
916.0 |
259.0 |
195 |
140 |
140 |
304.5 |
2xM32x1.5 |
105 |
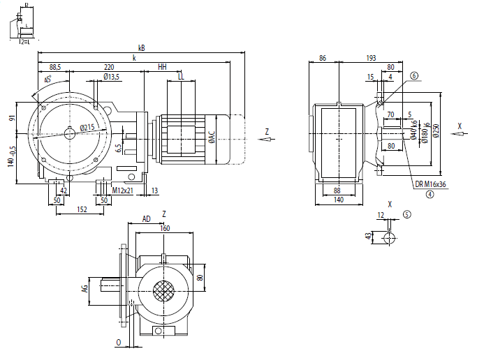
Монтажное исполнение на фланце (тип A)

| Мотор |
KF68
k |
kB |
AC |
AD |
AG |
LL |
HH |
O |
Вес
KF68 |
LA71 |
561.5 |
616.5 |
139.0 |
146 |
90 |
90 |
109.0 |
M20x1.5/M25x1.5 |
49 |
LA71Z |
580.5 |
635.5 |
139.0 |
146 |
90 |
90 |
109.0 |
M20x1.5/M25x1.5 |
49 |
LA80 |
598.5 |
662.0 |
156.5 |
155 |
90 |
90 |
108.5 |
M20x1.5/M25x1.5 |
54 |
LA80Z |
621.0 |
684.5 |
156.5 |
155 |
90 |
90 |
181.5 |
M20x1.5/M25x1.5 |
58 |
LA90S/L |
629.5 |
700.5 |
174.0 |
163 |
90 |
90 |
108.5 |
M20x1.5/M25x1.5 |
58 |
LA90ZL |
674.5 |
745.5 |
174.0 |
163 |
90 |
90 |
232.5 |
M20x1.5/M25x1.5 |
64 |
LA100L |
675.5 |
756.5 |
195.0 |
168 |
120 |
120 |
149.0 |
2xM32x1.5 |
67 |
LA100ZL |
745.5 |
826.5 |
195.0 |
168 |
120 |
120 |
281.0 |
2xM32x1.5 |
77 |
LA112M |
704.5 |
785.5 |
219.0 |
181 |
120 |
120 |
154.0 |
2xM32x1.5 |
79 |
LA112ZM |
732.5 |
813.5 |
219.0 |
181 |
120 |
120 |
258.0 |
2xM32x1.5 |
86 |
LA132S/M |
766.5 |
868.5 |
259.0 |
195 |
140 |
140 |
196.5 |
2xM32x1.5 |
89 |
LA132ZM |
812.5 |
914.5 |
259.0 |
195 |
140 |
140 |
304.5 |
2xM32x1.5 |
110 |
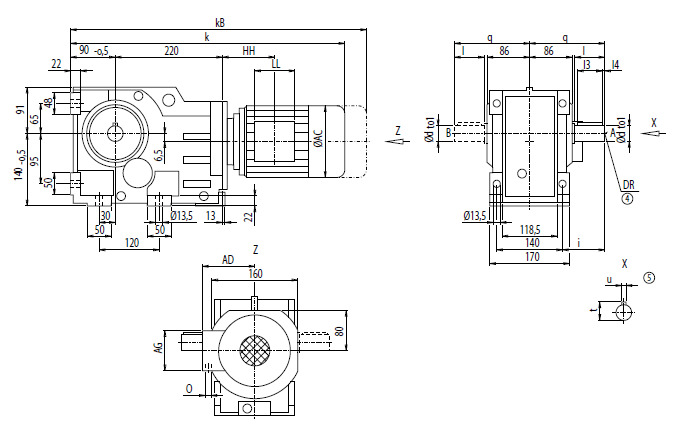
Монтажное исполнение корпус-фланец (тип C)

| d |
l9 |
M |
t |
u |
40 *) |
48 |
M16 |
43.3 |
12 |
45 |
47 |
M16 |
48.8 |
14 |
| Мотор |
KA68
k |
kB |
AC |
AD |
AG |
LL |
HH |
O |
Вес
KA68 |
LA71 |
563.0 |
618.0 |
139.0 |
146 |
90 |
90 |
109.0 |
M20x1.5/M25x1.5 |
40 |
LA71Z |
582.0 |
637.0 |
139.0 |
146 |
90 |
90 |
109.0 |
M20x1.5/M25x1.5 |
40 |
LA80 |
600.0 |
663.5 |
156.5 |
155 |
90 |
90 |
108.5 |
M20x1.5/M25x1.5 |
45 |
LA80Z |
622.5 |
686.0 |
156.5 |
155 |
90 |
90 |
181.5 |
M20x1.5/M25x1.5 |
49 |
LA90S/L |
631.0 |
702.0 |
174.0 |
163 |
90 |
90 |
108.5 |
M20x1.5/M25x1.5 |
50 |
LA90ZL |
676.0 |
747.0 |
174.0 |
163 |
90 |
90 |
232.5 |
M20x1.5/M25x1.5 |
56 |
LA100L |
677.0 |
758.0 |
195.0 |
168 |
120 |
120 |
149.0 |
2xM32x1.5 |
59 |
LA100ZL |
747.0 |
828.0 |
195.0 |
168 |
120 |
120 |
281.0 |
2xM32x1.5 |
69 |
LA112M |
706.0 |
787.0 |
219.0 |
181 |
120 |
120 |
154.0 |
2xM32x1.5 |
70 |
LA112ZM |
734.0 |
815.0 |
219.0 |
181 |
120 |
120 |
258.0 |
2xM32x1.5 |
77 |
LA132S/M |
768.0 |
870.0 |
259.0 |
195 |
140 |
140 |
196.5 |
2xM32x1.5 |
80 |
LA132ZM |
814.0 |
916.0 |
259.0 |
195 |
140 |
140 |
304.5 |
2xM32x1.5 |
102 |
|