|
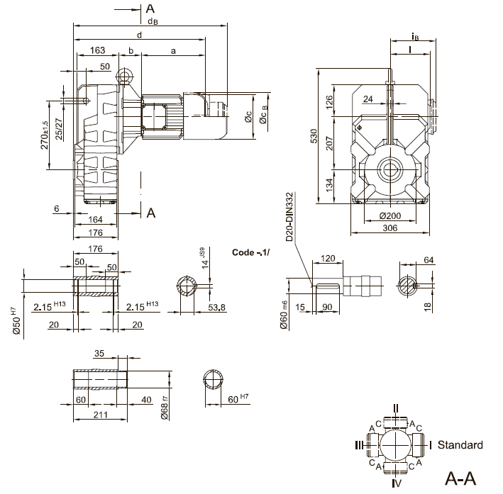
Вариант исполнения с литым моментным рычагом

Тип |
a |
b |
c |
d |
l
|
lB |
Исполнение с тормозом |
ЕОО3 |
ЕОО4 |
ЕОО8 |
zoo8 |
Z015 |
|
|
св |
dв |
св |
dв |
св |
dв |
св |
dв |
св |
dв |
|
|
BF50Z-../D05.. |
170 |
155 |
123 |
503 |
100 |
100 |
123 |
545 |
|
|
|
|
|
|
|
|
|
|
BF50Z-../D06.. |
170 |
155 |
123 |
503 |
100 |
100 |
123 |
545 |
|
|
|
|
|
|
|
|
|
|
BF50Z-../D07.. |
190 |
155 |
123 |
523 |
100 |
100 |
123 |
565 |
123 |
565 |
|
|
|
|
|
|
|
|
BF50-../D08.. |
200 |
73 |
156 |
450 |
115 |
115 |
|
|
|
|
166 |
525 |
|
|
|
|
|
|
BF50Z-../D08.. |
200 |
159 |
156 |
536 |
115 |
115 |
|
|
|
|
166 |
611 |
|
|
|
|
|
|
BF50-../D09.. |
251 |
87.5 |
181 |
516 |
124 |
124 |
|
|
|
|
192 |
595 |
192 |
609 |
192 |
615 |
|
|
BF50Z-../D09.. |
251 |
173.5 |
181 |
602 |
124 |
124 |
|
|
|
|
192 |
681 |
192 |
695 |
192 |
701 |
|
|
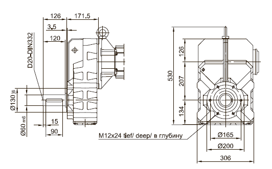
Тип |
a |
b |
c |
d |
l
|
lB |
Z015 |
ЕО75 |
Z075 |
Z100 |
|
|
св dв |
св dв |
св dв |
св dв |
|
|
BF50-../D11.. |
319 |
94 |
228 |
591 |
181 |
181 |
231 |
693 |
231 |
723 |
|
|
|
|
|
|
|
|
BF50-../D13.. |
393 |
107 |
266 |
678 |
217 |
217 |
|
|
277 |
812 |
277 |
832 |
|
|
|
|
|
|
BF50-../D16.. |
429 |
121 |
322 |
728 |
243 |
243 |
|
|
310 |
860 |
310 |
880 |
310 |
899 |
|
|
|
|
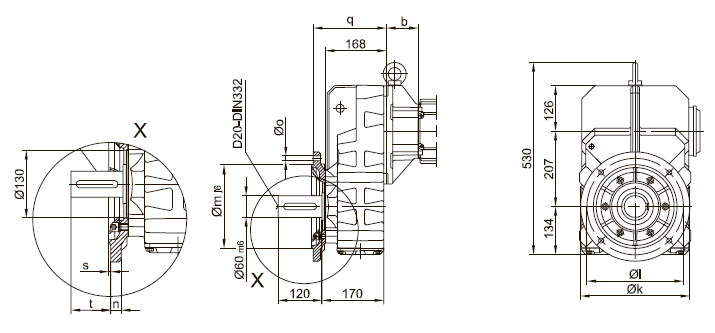
Фланец с резьбовыми отверстиями

Фланец со сквозными отверстиями

BF50(Z) |
k |
l |
m |
n |
o |
q |
s |
t |
стандартный -3./ |
300 |
265 |
230 |
20 |
13.5 |
201 |
4 |
96.5 |
малый -2./ |
250 |
215 |
180 |
16 |
13.5 |
198 |
1 |
99.5 |
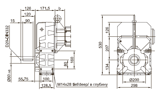
Лапы с резьбовыми отверстиями слева и справа

|